Garten F, Leipzig

Wohnhaus und Privatgarten

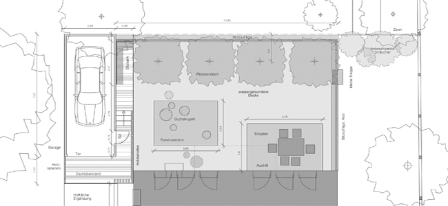
Auf sehr engem Raum nutzt dieser kleine Garten die topographischen Unterschiede zu den benachbarten Flächen aus und versöhnt komplexe Nutzungsansprüche mit einer schlichten Gestalt. Kompakt aber großzügig.

2008 - 09. Auftraggeber: privat.